Sectional Restoration fund

Betton Grange 6880 » 6880 Shop » Sponsor-a-Part » Sectional Restoration fund

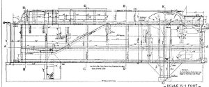
sectional Restoration fund (x100)

towards restoration of small parts of the chassis

Quantity
Loading Updating basket...